![]() |
|||||||
|---|---|---|---|---|---|---|---|
| ΤΟ ΓΡΑΦΕΙΟ | |||||||
| ΕΠΙΛΕΓΜΕΝΑ ΕΡΓΑ | |||||||
| ΑΠΟΚΑΤΑΣΤΑΣΕΙΣ/ΑΝΑΣΤΗΛΩΣΕΙΣ | |||||||
| ΝΕΑ ΚΤΗΡΙΑ | |||||||
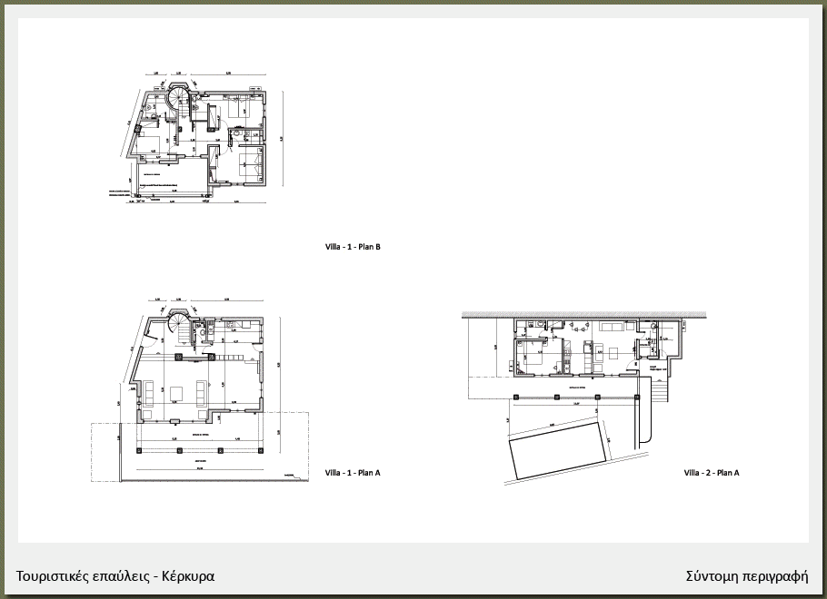
Τουριστικές επαύλεις στην Κέρκυρα (2016)Αντικείμενο της μελέτης αποτέλεσε η αναδιαρρύθμιση υφιστάμενων κατοικιών σε πολυτελείς τουριστικές επαύλεις. Η έντονη κατωφέρεια του οικοπέδου από τη μία και ο περιορισμός στα αυστηρά όρια του δεδομένου κελύφους από την άλλη, ήταν εξ αρχής τα ζητούμενα που διαμόρφωσαν την τελική πρόταση συνθέτοντας κατοικίες υψηλού επιπέδου που χαρακτηρίζονται από την άνεση στην κίνηση και την απεριόριστη θέα στα νοτιοανατολικά. | |||||||
Εξωνάρθηκας - Κωδωνοστάσιο - Ενοριακό Κέντρο (2011)Για την κάλυψη τον αυξημένων αναγκών σε χώρο, του ιερού ναού Αγίων Κωνσταντίνου και Ελένης για το εκκλησίασμα, προβλέπεται η κατασκευή εξωνάρθηκος με στοά στα δυτικά. Ο εξωνάρθηκας ακολουθεί τη δυτική όψη του ναού με υπερύψωση του κεντρικού τμήματος της, ενώ επεκτείνεται ελάχιστα πέραν του νότιου και βόρειου τοίχου του ιερού ναού. Με τον τρόπο αυτό διατηρούνται όλα τα μορφολογικά στοιχεία του ναού τα οποία διαμορφώνονται με τραβηχτά επιχρίσματα. Η δυτική όψη του εξωνάρθηκα ακολουθεί μορφολογικά την δυτική όψη του ναού. Το κωδωνοστάσιο χωροθετείται βορειοδυτικά του ναού. Αποτελεί ανεξάρτητο κτίσμα μορφής πύργου, σταυρόσχημης κάτοψης. Σε κάθε κεραία του σταυρού διαμορφώνεται ισόγειο στενό άνοιγμα ενώ στο άνω τμήμα της διαμορφώνεται τοξωτό άνοιγμα όπου αναρτάται η καμπάνα. Στο κωδωνοστάσιο δεν υπάρχουν άλλες χρήσεις. Η κάλυψη του πύργου του κωδωνοστασίου γίνεται με ξύλινη τετράριχτη στέγη η οποία περιστρέφεται 45ο σε σχέση με το οικοδόμημα και φέρει επικάλυψη από φύλλα χαλκού. Η θέση του κωδωνοστασίου βορειοδυτικά του ναού έχει ως στόχο να αποτελέσει σημείο αναφοράς μέσα στον οικισμό και παράλληλα να σημαίνεται και να αναγνωρίζεται η θέση της εκκλησίας από την ευρύτερη περιοχή. Το ενοριακό κέντρο τοποθετείται στο νοτιοανατολικό τμήμα του οικοπέδου, με στόχο το ενοριακό κέντρο να μην προβάλλεται μαζί με τον ναό από τον κεντρικό δρόμο. Πρόκειται για ισόγειο κτίσμα με υπόγειο και η κάλυψη του γίνεται με μονόριχτη κεκλιμένη στέγη για το κεντρικό τμήμα και δώματα στους υπόλοιπους χώρους. Η αίθουσα ανοίγεται στο νότο με μεγάλα πολύφυλλα κινητά υαλοστάσια, τα οποία επιτρέπουν την επέκταση του κλειστού χώρου στον εξωτερικό χώρο, ιδιαίτερα ευχάριστο κατά τους καλοκαιρινούς μήνες. Η διαμόρφωση του υπαίθριου χώρου σχεδιάζεται με κέντρο τον ιερό ναό και έχει ως στόχο την ανάδειξη και την αισθητική του αναβάθμιση και παράλληλα την δημιουργία ενός ευχάριστου χώρου για ανάπαυση μέσα στον οικισμό. Εργαλείο προς επίτευξη των στόχων αποτέλεσε και ο φωτισμός του χώρου ο οποίος ακολουθεί την ποιότητα της κάθε περιοχής. | |||||||
Ενοριακό Κέντρο - Κατοικία (2011)Το ενοριακό κέντρο τοποθετείται στη νοτιοδυτική γωνία σε ελαφριά εσοχή από το νότιο όριο του οικοπέδου. Το ενοριακό κέντρο φιλοξενεί αίθουσα για κοινωνικές εκδηλώσεις καθώς και τους απαραίτητους βοηθητικούς χώρους. Η πρόσβαση γίνεται μέσα από τον αύλειο χώρου του ναού. Η αίθουσα ανοίγεται στο νότο με μεγάλα πολύφυλλα κινητά υαλοστάσια, τα οποία επιτρέπουν την επέκταση του κλειστού χώρου στον εξωτερικό χώρο, ιδιαίτερα ευχάριστο κατά τους καλοκαιρινούς μήνες. Τα ανοίγματα προστατεύονται από τον ήλιο κατά τους καλοκαιρινούς μήνες με την οριζόντια προβολή της πλάκας σκυροδέματος. Στα βόρεια τοποθετούνται οι βοηθητικοί χώροι, χώροι υγιεινής και μικρό παρασκευαστήριο. Η κύρια πρόσβαση στο κτίριο είναι από τα δυτικά. Ο σχεδιασμός της κατοικίας του ιερέα προβλέπει την τοποθέτηση της μέσα σε ένα μικρό οριοθετημένο χώρο με χαμηλό τοιχίο στη βορειοδυτική γωνία του οικοπέδου. Η διαμόρφωση του υπαίθριου χώρου σχεδιάζεται με κέντρο τον ιερό ναό και έχει ως στόχο την ανάδειξη και την αισθητική του αναβάθμιση και παράλληλα την δημιουργία ενός ευχάριστου χώρου για ανάπαυση μέσα στον οικισμό. Ένας εσωτερικός δρόμος διαμορφώνεται δυτικά του ναού, ενώνοντας την νότια με την βόρεια κοινοτική οδό και παράλληλα δημιουργεί ένα όριο ανάμεσα στον ναό και τα δυο κτίρια, το ενοριακό κέντρο και την κατοικία του ιερέα. Το όριο ενισχύεται από την δενδροφύτευση με ψηλά αειθαλή δένδρα. Η δενδροφύτευση διακόπτεται στα σημεία εισόδου στο ενοριακό κέντρο και στο χώρο όπου βρίσκεται η οικία του ιερέα καθώς και στο σημείο όπου βρισκόταν η κόγχη του παλαιού ναού, όπου κατασκευάζεται ένα μικρό προσκυνητάρι. Νότια του ναού ένας άλλος εσωτερικός δρόμος, μικρότερης σημασίας, επιτρέπει την είσοδο στο χώρο από τα ανατολικά. Εργαλείο προς επίτευξη των στόχων αποτέλεσε και ο φωτισμός του χώρου ο οποίος ακολουθεί την ποιότητα της κάθε περιοχής. | |||||||
Εξωνάρθηκας (2011)Αντικείμενο της παρούσας μελέτης είναι η πρόταση προσθήκης κατ’ επέκτασης, εξωνάρθηκος, ο οποίος θα καλύπτει τις σύγχρονες ανάγκες ενός ναού που βρίσκεται σε χρήση. Η χάραξη και η διαστασιολόγηση της νέας κατασκευής υπόκειται στους αυστηρούς περιορισμούς των ορίων του ελεύθερου χώρου μεταξύ του ναού και της κλίμακας καθόδου προς το χώρο στάθμευσης. Η απομένουσα απόσταση της νέας κατασκευής από το όριο της κλίμακας θα πρέπει να είναι τέτοια που να επιτρέπει την ελεύθερη και απρόσκοπτη διέλευση των πεζών. Σύμφωνα με τη μελέτη, προτείνεται η κατ’ επέκταση προσθήκη εξωνάρθηκος, κλειστού χώρου ο οποίος περιβάλλεται από στοές, σε επαφή με τον υφιστάμενο ναό στα δυτικά. Τα υποστυλώματα του περιστώου είναι πεσσοί εκτός από τα δύο κεντρικά τα οποία είναι κίονες σηματοδοτώντας την είσοδο στο ναό. Τα ανοίγματα γεφυρώνονται με τόξα, από τα οποία τα τρία κεντρικά της δυτικής όψης είναι υψηλότερα από τα υπόλοιπα. Η όψη του εξωνάρθηκος ακολουθεί τη μορφολογική διάρθρωση της δυτικής όψης του ναού ενώ η κάλυψή του γίνεται με δίρριχτη στέγη με επικάλυψη από κεραμίδια γαλλικού τύπου τα οποία όμως αποκρύπτονται από τις περιμετρικές επιστέψεις με τη δημιουργία λίθινου γείσου. Στο σχεδιασμό του κλειστού χώρου σε σχέση με το περίστωο, λήφθηκαν υπόψη οι θέσεις των υφιστάμενων ανοιγμάτων του ναού στα δυτικά. | |||||||
Κωδωνοστάσιο Ι. Ν. Αγίου Γεωργίου (2010)Μια οικεία εικόνα, τόσο στους κατοίκους όσο και στους επισκέπτες της πόλης και της ευρύτερης περιοχής είναι ο ναός του Αγίου Γεωργίου με το κωδωνοστάσιο του στο κέντρο της πόλης. Ένα τοπόσημο, που κατευθύνει τον επισκέπτη της πόλης που την προσεγγίζει από τα ανατολικά στο κέντρο της και αποτελεί σημαντικό μέρος της τοπογραφικής της ιστορίας. Για τον λόγο αυτό οι μελετητές επέλεξαν να διατηρήσουν την σημερινή μορφή του κωδωνοστασίου μεταφέροντας τα στοιχεία που το χαρακτηρίζουν, απόληξη και τρόπος κάλυψης του πύργου, στο νέο κωδωνοστάσιο. Άλλωστε η αρχική του μορφή ακολουθεί τα πρότυπα των μεταβυζαντινών ναών – πυργοειδή κτίσματα. Η μικρή μετακίνηση του νοτιότερα δεν θα αλλάξει την εικόνα της πόλης και τη σημασία του συνόλου μέσα σε αυτή. Ο όγκος εμφανίζεται λιτός και συμπαγής. Ο αυστηρός χαρακτήρας του οικοδομήματος μετριάζεται από την ύπαρξη λίθινων στοιχείων τα οποία διασπούν τις επιφάνειες και την διαμόρφωση των ανοιγμάτων με ανακουφιστικά τόξα από συμπαγείς οπτόπλινθους. Τρείς κοσμήτες από ορθογώνιους λαξευτούς λίθους περιτρέχουν το κωδωνοστάσιο διαιρώντας τις όψεις σε τέσσερα τμήματα. | |||||||
Κωδωνοστάσιο Ι. Ν. Αγίου Γεωργίου Ευρωπού (2009)Ο ναός βρίσκεται στο νοτιοανατολικό τμήμα της πόλης και σε επαφή με την κεντρική της πλατεία. Η πλατεία θα μπορούσε να χαρακτηριστεί ως το κύριο κοινωνικό κέντρο της πόλης, σαν αυτά που διαμορφώνονταν στους μεσαιωνικούς οικισμούς, αφού εδώ συγκεντρώνεται η διοίκηση – το δημαρχείο, το εμπόριο και η εκκλησία του Αγίου Γεωργίου, ενώ ανατολικά και νότια υπάρχουν κύριοι οδικοί άξονες που διαπερνούν την πόλη. Ο ναός δεσπόζει στο χώρο με το επιβλητικό ύψος και τον όγκο του. Οικοδομείται τον περασμένο αιώνα στη θέση ενός μεταβυζαντινού ναού και τοποθετείται σ’ ένα ολόκληρο οικοδομικό τετράγωνο. Παρόλο που η εκκλησία περιορίζεται στην βορειοανατολική γωνία του οικοδομικού τετραγώνου, ο ελεύθερος χώρος που απομένει είναι ελάχιστος και κατακερματισμένος. Το κωδωνοστάσιο τοποθετείται στην νοτιοδυτική γωνία της εκκλησίας ως ανεξάρτητο κτίσμα. Γύρω από αυτό διαμορφώνεται μια αυλή με αρωματικά φυτά στο βόρειο τμήμα και δένδρα στα νοτιοανατολικά. Έχει μορφή πύργου του οποίου οι γωνίες προεξέχουν ως αντηρίδες, δίνοντας στον όγκο πλαστικότητα και σταθερότητα. Η στιβαρή βάση αντικαθίσταται εδώ από ένα κτήριο με δίρριχτη ξύλινη στέγη μέσα από την οποία προβάλλει ο πύργος του κωδωνοστασίου. Το οικοδόμημα διαρθρώνεται σε πέντε ορόφους και υπόγειο. Η κάλυψη του πύργου του κωδωνοστασίου γίνεται με την κατασκευή μια ξύλινης τετράρριχτης στέγης η οποία εδράζεται σε δυο κάθετες μεταξύ τους δοκούς από οπλισμένο σκυρόδεμα. Όλη η ξύλινη κατασκευή επενδύεται με φύλλα προοξειδωμένου χαλκού πάνω σε ξύλινο σανίδωμα. Η κατασκευή του τελευταίου ορόφου, λόγω των υλικών προσδίδει ελαφρότητα στο σύνολο. Οι όψεις δεν φέρουν πρόσθετα διακοσμητικά στοιχεία. Η διάπλαση των όψεων εμπλουτίζεται με την εναλλαγή των υλικών και την δημιουργία ανοιγμάτων, άλλοτε φωτιστικών – παράθυρα και άλλοτε ως στηθαίο. Τα ανοίγματα βρίσκονται στον δεύτερο όροφο συμμετρικά στις τέσσερις πλευρές. Πρόκειται για σύνολο δύο τοξωτών ανοιγμάτων τα οποία ακολουθούνται από ένα δεύτερο τόξο ψηλότερα το οποίο περιλαμβάνει και ρόλοι. Στον τέταρτο όροφο, ο οποίος είναι και ο τελευταίος, το στηθαίο διαμορφώνεται με ορθογώνια ανοίγματα. | |||||||
Συγκρότημα κατοικιών στην Αθήνα (2006)Το θέμα της κατοίκησης στο κέντρο του σύγχρονου αστικού ιστού επιβάλει τον ορισμό του εσωτερικού και εξωτερικού χώρου και τον επαναπροσδιορισμό των χώρων όπως: α. υπαιθρίων β. τύπου στοάς-loggia, βατοί από το εξωτερικό και τέλος, γ. τύπου «αιθρίου», είτε με τη μορφή κεντρικής αυλής είτε καλυμμένου σε μεμονωμένες κατοικίες με υπερυψώσεις δωμάτων. Όλοι αυτοί οι χώροι λειτουργούν ως φράγμα και ως γέφυρα ανάμεσα στον αστικό ιστό και την Κατοικία και ορίζουν την πλαστικότητα του συνόλου. Το συγκρότημα οργανώνεται γύρω από μια κεντρική αυλή ενώ πλαίσια από béton armé τα οποία θα χρησιμεύσουν στη στερέωση των γυμνών μεσοτοιχιών θα σημάνουν την είσοδο της. Γύρω από την κεντρική αυλή διατάσσεται ένα «τείχος» κατοικιών τεσσάρων ορόφων σχήματος Π και μια ξεχωριστή πτέρυγα τριών ορόφων που ακολουθεί την παλαιά χάραξη που αποτυπώνεται στην μεσοτοιχία με τα υφιστάμενα παλαιά κτίσματα. Οι πτέρυγες τροφοδοτούνται συνολικά από τρία κλιμακοστάσια. Το σώμα κατοικιών σχήματος «Π» καταλαμβάνεται αποκλειστικά στους δύο τελευταίους ορόφους από διαμερίσματα δύο ορόφων, ενώ τα ισόγεια υπερυψώνονται σε σχέση με τον δρόμο χάρη στο «άνδηρο» που δημιουργεί το υπόγειο. Όλα τα διαμερίσματα δίνουν σε αυλές στα δώματα των υποκειμένων διαμερισμάτων και ενίοτε σε εσοχή που δημιουργούν τα εκατέρωθεν. Σε συνεργασία με τον αρχιτέκτονα Γ. Σιβρίδη. | |||||||
| ΥΠΑΙΘΡΙΟΙ ΧΩΡΟΙ | |||||||
| ΔΗΜΟΣΙΑ ΚΤΗΡΙΑ | |||||||
| ΕΝΗΜΕΡΩΣΗ | |||||||
| ΕΠΙΚΟΙΝΩΝΙΑ | |||||||
Όροι Χρήσης
Όροι χρήσηςΣύμβαση Χρήσης Ο επισκέπτης/χρήστης των σελίδων και των υπηρεσιών του www.kanavakis.gr αποδέχεται τους κατωτέρω όρους χρήσης, που ισχύουν για το σύνολο του περιεχομένου, των σελίδων, των γραφικών, των εικόνων, των σχεδίων, των φωτογραφιών και των αρχείων που περιλαμβάνονται στο δικτυακό αυτό χώρο. Συνεπώς, οφείλει να διαβάσει προσεκτικά τους όρους αυτούς πριν από την επίσκεψη ή τη χρήση των σελίδων και των υπηρεσιών του . Εάν δε συμφωνεί, τότε οφείλει να μην κάνει χρήση των υπηρεσιών και του περιεχομένου του www.kanavakis.gr. Ο επισκέπτης / χρήστης παρακαλείται να ελέγχει το περιεχόμενο των συγκεκριμένων σελίδων για ενδεχόμενες αλλαγές. Η εξακολούθηση της χρήσης του www.kanavakis.gr ακόμη και μετά τις όποιες αλλαγές, σημαίνει την ανεπιφύλακτη εκ μέρους του επισκέπτη / χρήστη αποδοχή των όρων αυτών. Ευθύνη επισκέπτη / χρήστη Ο επισκέπτης/χρήστης των σελίδων και των υπηρεσιών του www.kanavakis.gr αναλαμβάνει την ευθύνη για οποιαδήποτε ζημία προκαλείται σε αυτό το δικτυακό χώρο, από κακή ή αθέμιτη χρήση των σχετικών υπηρεσιών. Περιορισμός ευθύνης Ο ιδιοκτήτης αυτού του ιστοχώρου, ρητά αποκηρύσσει όλες τις εξουσιοδοτήσεις όσον αφορά αυτό το δικτυακό τόπο, είτε ρητές, είτε υπονοούμενες, συμπεριλαμβανόμενες, αλλά όχι περιορισμένες, υπονοούμενες εξουσιοδοτήσεις εμπορευσιμότητας και καταλληλότητας για ένα συγκεκριμένο σκοπό. Σε καμία περίπτωση δε θα είναι υπεύθυνος προς το χρήστη/ες για κάθε είδους ζημίες, συμπεριλαμβανόμενες τυχόν άμεσες, έμμεσες, ειδικές ή επακόλουθες, που προκύπτουν από ή σε σχέση με τη χρήση αυτού του site ή κάθε συνδεδεμένου site. Ο εφαρμοσμένος νόμος μπορεί να μην επιτρέπει όλες τις παραπάνω αποκλειστικότητες, οπότε όλη ή μέρος αυτής της παραγράφου μπορεί να μην εφαρμόζεται σε εσάς. Κάθε δικαίωμα που δεν έχει εκφραστεί ρητά με το παρών είναι δεσμευμένο. Αποκλεισμός νομικών συμβουλών Το περιεχόμενο και οι πληροφορίες που περιλαμβάνονται στο www.kanavakis.gr αποτελούν ενημέρωση προς τον επισκέπτη/χρήστη του www.kanavakis.gr και γενικά προς την κοινότητα των χρηστών του Internet και δε δύνανται σε καμιά περίπτωση να εκληφθούν ως νομικές συμβουλές ούτε υποκρύπτουν σε καμία περίπτωση οποιαδήποτε τέτοια σχέση μεταξύ δικηγόρου και πελάτη ή προτροπή για την επιχείρηση ή μη συγκεκριμένων πράξεων. Το www.kanavakis.gr αναλαμβάνει τη συλλογή, επεξεργασία και διανομή του περιεχομένου του, χωρίς όμως σε καμιά περίπτωση να εγγυάται την αρτιότητα, την πληρότητα, την επάρκεια και γενικά την καταλληλότητα αυτού και την απουσία ενδεχομένων λαθών πολύ δε περισσότερο λόγω του ιδιαιτέρως μεγάλου όγκου του, καθώς και της συμμετοχής και τρίτων φορέων (φυσικών ή νομικών προσώπων) κατά την πρωτογενή παραγωγή και συλλογή του. Επίσης δεν εγγυάται ότι οι σελίδες, οι υπηρεσίες, οι επιλογές και τα περιεχόμενα θα παρέχονται χωρίς διακοπή, χωρίς σφάλματα και ότι τα λάθη θα διορθώνονται και ότι το ίδιο ή οποιοδήποτε άλλο συγγενικό site ή οι εξυπηρετητές "servers" μέσω των οποίων αυτά τίθενται στη διάθεσή σας, σας παρέχονται χωρίς "υιούς" ή άλλα επιζήμια συστατικά. Συνεπώς, οι επισκέπτες / χρήστες του www.kanavakis.gr , χρησιμοποιώντας τις υπηρεσίες του με δική τους πρωτοβουλία, αναλαμβάνουν και τη σχετική ευθύνη διασταύρωσης των παρεχομένων πληροφοριών με τις πηγές. "Δεσμοί" (links) προς άλλα sites Το www.kanavakis.gr δεν ελέγχει τη διαθεσιμότητα, το περιεχόμενο, την πολιτική προστασίας των προσωπικών δεδομένων, την ποιότητα και την πληρότητα των υπηρεσιών άλλων web sites και σελίδων στα οποία παραπέμπει μέσω "δεσμών", hyperlinks ή διαφημιστικών banners. Συνεπώς για οποιοδήποτε πρόβλημα παρουσιασθεί κατά την επίσκεψη/χρήση τους οφείλετε να απευθύνεστε απευθείας στα αντίστοιχα web sites και σελίδες, τα οποία και φέρουν τη σχετική ευθύνη για την παροχή των υπηρεσιών τους. Το www.kanavakis.gr σε καμία περίπτωση δεν πρέπει να θεωρηθεί ότι ενστερνίζεται ή αποδέχεται το περιεχόμενο ή τις υπηρεσίες των web sites και των σελίδων στα οποία παραπέμπει ή ότι συνδέεται με αυτά κατά οποιονδήποτε άλλο τρόπο. Εφαρμοστέο δίκαιο και λοιποί όροι Σε καμία περίπτωση ο ιστοχώρος αυτός δε διακινεί προσωπικά σας στοιχεία σε τρίτους (άρθρο 11 ν. 2472/1997). Σε καμία περίπτωση δεν πωλεί ή ενοικιάζει προσωπικά σας δεδομένα σε τρίτους. Τα στοιχεία αυτά χρησιμοποιούνται αποκλειστικά από το www.kanavakis.gr για επικοινωνία, βελτίωση υπηρεσιών και εξυπηρέτησης. Εξαίρεση αποτελεί η περίπτωση που οι συγκεκριμένες πληροφορίες ζητηθούν με δικαστική απόφαση από όργανα του Νόμου. Οι ανωτέρω όροι και προϋποθέσεις χρήσης του ιστοχώρου, καθώς και οποιαδήποτε τροποποίηση, αλλαγή ή αλλοίωσή τους διέπονται και συμπληρώνονται από το ελληνικό δίκαιο, το δίκαιο της ευρωπαϊκής ένωσης και τις σχετικές διεθνείς συνθήκες. Οποιαδήποτε διάταξη των ανωτέρω όρων καταστεί αντίθετη προς το νόμο, παύει αυτοδικαίως να ισχύει και αφαιρείται από το παρόν, χωρίς σε καμία περίπτωση να θίγεται η ισχύς των λοιπών όρων. Το παρόν αποτελεί τη συνολική συμφωνία μεταξύ του www.kanavakis.gr και του επισκέπτη/χρήστη των σελίδων και υπηρεσιών του και δε δεσμεύει παρά μόνο αυτούς. Καμία τροποποίηση των όρων αυτών δε θα λαμβάνεται υπόψη και δε θα αποτελεί τμήμα της συμφωνίας αυτής, εάν δεν έχει διατυπωθεί εγγράφως και δεν έχει ενσωματωθεί σε αυτή. Πνευματικά δικαιώματα Copyright Το λογότυπο του www.kanavakis.gr δεν επιτρέπεται να αντιγραφεί ή να χρησιμοποιηθεί χωρίς γραπτή συγκατάθεση. Εκτός των ρητά αναφερόμενων εξαιρέσεων (πνευματικά δικαιώματα τρίτων, συνεργατών και φορέων), όλο το περιεχόμενο του www.kanavakis.gr, συμπεριλαμβανομένων εικόνων, γραφικών, φωτογραφιών, σχεδίων, κειμένων, των παρεχόμενων υπηρεσιών και γενικά όλων των αρχείων αυτού του δικτυακού τόπου, εκτός από τα κατατεθειμένα λογότυπα των φιλοξενουμένων εταιρειών, αποτελούν πνευματική ιδιοκτησία, και σήματα υπηρεσιών του www.kanavakis.gr και προστατεύονται από τις σχετικές διατάξεις του ελληνικού δικαίου, του ευρωπαϊκού δικαίου και των διεθνών συμβάσεων και συνθηκών. Συνεπώς, κανένα εξ αυτών δε δύναται να αποτελέσει εν όλων ή εν μέρει αντικείμενο πώλησης, αντιγραφής, τροποποίησης, αναπαραγωγής, αναδημοσίευσης ή να "φορτωθεί", να μεταδοθεί ή να διανεμηθεί με οποιονδήποτε τρόπο. Εξαιρείται η περίπτωση της μεμονωμένης αποθήκευσης ενός και μόνου αντιγράφου τμήματος του περιεχομένου σε έναν απλό προσωπικό ηλεκτρονικό υπολογιστή, για προσωπική και όχι δημόσια ή εμπορική χρήση και χωρίς απαλοιφή της ένδειξης προέλευσής τους από το www.kanavakis.gr, χωρίς να θίγονται με κανένα τρόπο τα σχετικά δικαιώματα πνευματικής και βιομηχανικής ιδιοκτησίας. Τα λοιπά προϊόντα ή υπηρεσίες που αναφέρονται στις ηλεκτρονικές σελίδες του παρόντος κόμβου και φέρουν τα σήματα των αντίστοιχων οργανισμών, εταιρειών, συνεργατών φορέων, ενώσεων ή εκδόσεων, αποτελούν δική τους πνευματική και βιομηχανική ιδιοκτησία και συνεπώς οι φορείς αυτοί φέρουν τη σχετική ευθύνη. Ο χρήστης/μέλος κατανοεί και αποδέχεται ότι δεν του παρέχεται το δικαίωμα να αναπαράγει, αντιγράφει, πωλεί, μεταπωλεί ή/και εκμεταλλεύεται εμπορικά με οποιονδήποτε τρόπο σύνολο ή μέρος του περιεχομένου του www.kanavakis.gr. |
|||||||
| (c) 2013 Γ. ΚΑΝΑΒΑΚΗΣ | |||||||
| GR | EN | ||||||







